fbpx


LOADING

#200 - 222 Mapleview Drive W Barrie, Ontario L4N 9E7

8322 sqft
Fully Air Conditioned Forced Air

$19 / ft2

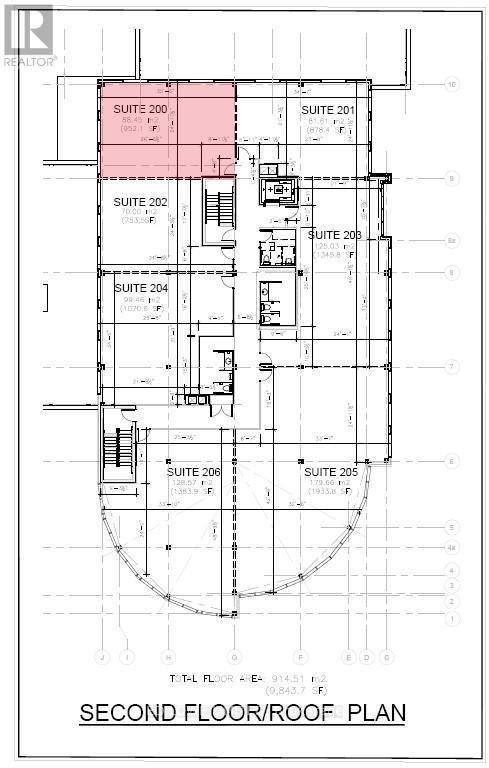
8322 s.f. office space in newer build Industrial space for lease. The entire floor can be demised as needed. Modern Lab with high air quality control. State of the art construction. Lots of parking, high traffic area, close to shopping, restaurants, fitness clubs and other amenities. Excellent highway access. Great frontage on Mapleview & Reid Ave. $19.00/s.f./year + TMI @11.75/s.f./year + HST. Unit s.f. is 8,322 sq.ft. + 15% gross up 1,517 totalling 9,839 sq.ft (id:56889)

Property Details

MLS® Number S9269206
Property Type Office
Community Name 400 West
Amenities Near By Highway, Public Transit
Farm Type Other
Features Elevator

Building

Cooling Type Fully Air Conditioned
Heating Fuel Natural Gas
Heating Type Forced Air
Size Exterior 8322 Sqft
Size Interior 8322 Sqft
Type Offices
Utility Water Municipal Water

Land

Acreage No
Land Amenities Highway, Public Transit
Size Depth 429 Ft
Size Frontage 544 Ft
Size Irregular Bldg=544.23 X 429.74 Ft
Size Total Text Bldg=544.23 X 429.74 Ft
Zoning Description Bp

https://www.realtor.ca/real-estate/27330927/200-222-mapleview-drive-w-barrie-400-west


DANIELLE FERGUSON
Salesperson

(705) 726-3871
ED LOWE LIMITED
47 Mills Road #6
Barrie, Ontario L4N 6H4

(705) 726-3871
(705) 726-8260
https://edlowerealestate.com/

Interested?

Contact us for more information


Generating Captcha

Compare Listings